


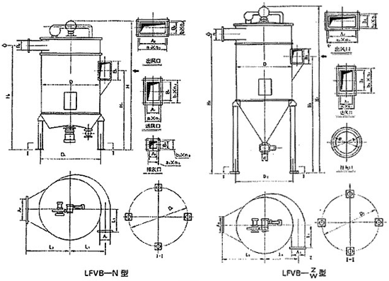
LFVB系列微震扁袋除塵器,是一種先進的O除塵設備,他具有結構合理,除塵效率,高清灰效果好,運行可靠,維護管理簡單等優點;微震反吹扁袋式除塵器適用于水泥,建材,冶金,等領域,在這些行業應用的實踐證明了他所具備的獨特性O除塵特點.
服務電話:13091153069(同微信)

江蘇丹陽機械廠執丸機配套布袋除塵器發貨,拋丸機除塵器系統主要由以下部分組成:除塵器主體、除塵風機、煙筒、風管、電器系統。
一、簡介
LFVB系列微震扁袋除塵器適用于機械回轉化工、機械、電力等工業部門。在這些行業應用的實踐證明了他所具備的獨特性。微震反吹扁袋除塵器是一種先進的O除塵設備,他具有結構合理,除塵效率,高清灰效果好,運行可靠,維護管理簡單等優點。本設備適用于水泥、建材、冶金、等領域,為、保護大氣環境作出了貢獻。
二、技術性能
|
序號
|
型號規格
|
實際過濾面積m2
|
濾袋數量(個)
|
濾袋長度(m)
|
過濾風速(m/min)
|
處理風量(m3/h)
|
除塵效率(%)
|
設備阻力(Kpa)
|
重量
(噸) |
|
1
|
LFVB-N-1/50
|
52
|
30
|
2.2
|
1-2 |
3000-6000
|
>99.5
|
0.8-1.6
|
3.06
|
|
2
|
LFVB-N-12/70
|
73
|
66
|
1.4
|
4200-8400
|
3.66
|
|||
|
3
|
LFVB-N-12/90
|
93
|
66
|
1.8
|
5400-10800
|
4.32
|
|||
|
4
|
LFVB-N-12/120
|
124
|
66
|
2.4
|
7200-14400
|
5.13
|
|||
|
5
|
LFVB-N-12/140
|
145
|
66
|
2.8
|
8400-16800
|
5.88
|
|||
|
6
|
LFVB-N-13/160
|
161
|
128
|
1.6
|
9600-19200
|
6.7
|
|||
|
7
|
LFVB-N-13/180
|
181
|
128
|
1.8
|
10800-21600
|
6.85
|
|||
|
8
|
LFVB-N-13/220
|
221
|
128
|
2.2
|
13200-26400
|
7.26
|
|||
|
9
|
LFVB-N-13/260
|
261
|
128
|
2.6
|
15600-31200
|
8.19
|
|||
|
10
|
LFVB-N-14/300
|
297
|
210
|
1.8
|
18000-39000
|
9.27
|
|||
|
11
|
LFVB-N-14/380
|
396
|
210
|
2.4
|
22800-45600
|
11.06
|
|||
|
12
|
LFVB-N-14/460
|
462
|
210
|
2.8
|
27600-55200
|
12.9
|
|
序號
|
型 號 規 格
|
實際過濾面積(m2)
|
濾袋數量(個)
|
濾袋長度 (m)
|
過濾風速(m/min)
|
處理風量(m3/h)
|
除塵效率(%)
|
設備阻力
(Kpa) |
重量
(噸) |
|
1
|
LFVB-Z-5/1000
|
1037
|
300
|
4.4
|
0.5-1
|
30000-60000 |
>99.5
|
0.8-1.6
|
32.67
|
|
2
|
LFVB-Z-5/1200
|
1225
|
300
|
5.2
|
36000-72000
|
37.2
|
|||
|
3
|
LFVB-Z-5/1400
|
1414
|
300
|
6.0
|
42000-84000
|
44.17
|
|||
|
4
|
LFVB-Z-6/1600
|
1626
|
414
|
5.0
|
48000-96000
|
48.16
|
|||
|
5
|
LFVB-Z-6/1800
|
1821
|
414
|
5.6
|
54000-108000
|
51
|
|||
|
6
|
LFVB-Z-6/2000
|
2016
|
414
|
6.2
|
60000-120000
|
57.5
|
|||
|
|
|
|
|
|
|
|
序號
|
型號規格
|
實際過濾面積m2
|
濾袋數量(個)
|
濾袋長度( m)
|
過濾風速
(m/min) |
處理風量(m3/h)
|
除塵效率(%)
|
設備阻力(Kpa)
|
重量
(噸) |
|
1
|
LFVB-W-1/50
|
52
|
30
|
2.2
|
1-2
|
3000-6000
|
>99.5
|
0.8-1.6
|
3.5
|
|
2
|
LFVB-W-1/70
|
75
|
30
|
3.2
|
4200-8400
|
4.27
|
|||
|
3
|
LFVB-W-1/90
|
94
|
30
|
4.0
|
5400-10800
|
4.93
|
|||
|
4
|
LFVB-W-2/120
|
124
|
66
|
2.4
|
7200-14400
|
6.45
|
|||
|
5
|
LFVB-W-2/140
|
145
|
66
|
2.8
|
8400-16800
|
7.05
|
|||
|
6
|
LFVB-W-2/160
|
166
|
66
|
3.2
|
9600-19200
|
7.66
|
|||
|
7
|
LFVB-W-2/180
|
187
|
66
|
3.6
|
10800-21600
|
7.85
|
|||
|
8
|
LFVB-W-3/220
|
221
|
128
|
2.2
|
13200-26400
|
8.57
|
|||
|
9
|
LFVB-W-3/260
|
261
|
128
|
2.6
|
15600-31200
|
9.38
|
|||
|
10
|
LFVB-W-3/300
|
302
|
128
|
3.0
|
18000-36000
|
10.62
|
|||
|
11
|
LFVB-W-3/380
|
382
|
128
|
3.8
|
22800-45600
|
13.29
|
|||
|
12
|
LFVB-W-3/460
|
462
|
128
|
4.6
|
27600-55200
|
15.1
|
|||
|
13
|
LFVB-W-4/530
|
528
|
210
|
3.2
|
31800-63600
|
18.77
|
|||
|
14
|
LFVB-W-4/660
|
660
|
210
|
4.0
|
39600-79200
|
20.82
|
|||
|
15
|
LFVB-W-4/800
|
729
|
210
|
4.8
|
48000-96000
|
24.38
|
